
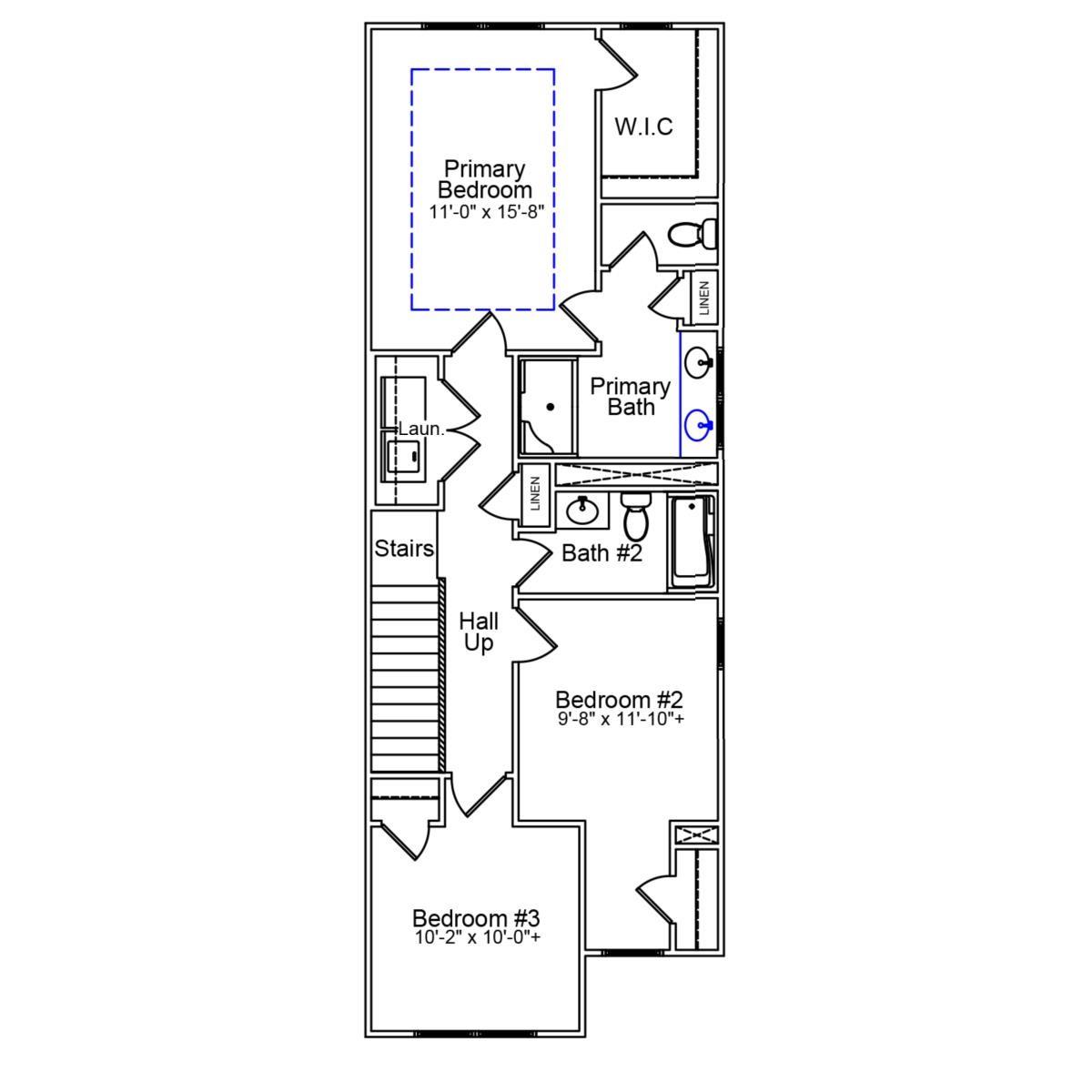
Beautifully designed and thoughtfully crafted, this north-facing Cannalily townhome offers 3 bedrooms, 2.5 baths, and a light-filled open-concept layout perfect for modern living. The kitchen showcases Burlap colored cabinets, white backsplash, Quartz countertops, a spacious sitting island, stainless steel GE electric appliances, and luxury vinyl plank flooring throughout the main level. Upstairs, the spacious primary suite features a boxed ceiling, a walk-in closet, and a private bath with dual vanities and a tiled walk-in shower. A nearby laundry closet adds everyday convenience, while two additional bedrooms and a full bath complete the second floor. Additional features include a rear-entry one-car garage and a built-in bench and cubby system just inside the entryideal for storage and organization. With smart design, 9' ceilings on both floors, quality finishes, and low-maintenance living, the Cannalily plan blends style and functionality in every detail! Ask about Move-in package Promotion! 2025 Parade of Homes GOLD Winner!
| MLS # | 4261325 |
|---|---|
| Listing Type | For Sale |
| Style | Town House |
| HOA Dues | $225 |
| Sub-Type | New Construction |
| Status | Active |
| Year | 2025 |
| Days On Site | 132 |
| Listing Provided By | Mungo Homes | Nathan Daniel |
| Bed(s) | 3 |
|---|---|
| Bath(s) | 3 Total |
| SQ Feet | 1,456 |
| Parking Cap | 1 |
| Story(s) | 2 |
| Acreage | 0.04 |
| Cooling | Central Air, Heat Pump |
|---|---|
| Heating | Central, Heat Pump |
| Interior Features | Attic Stairs Pulldown, Cable Prewire, Kitchen Island, Open Floorplan, Pantry, Walk-In Closet(s), Walk-In Pantry |
| Appliances | Dishwasher, Disposal, Electric Oven, Electric Range, Electric Water Heater, Microwave |
| Exterior Features | In-Ground Irrigation, Lawn Maintenance |
|---|---|
| Roof | Architectural Shingle |
| Security Features | Carbon Monoxide Detector(s), Smoke Detector(s) |
| Construction Materials | Vinyl |
| Foundation Details | Slab |
| Garage Yes / No | Yes |
|---|---|
| Parking Features | Attached Garage, Garage Door Opener, Garage Faces Rear |
| Utilities | Cable Available |
|---|
| Community Features | Dog Park |
|---|
| List Aor | Canopy Realtor Association |
|---|
| Property | 298000 |
|---|
| State | NC |
|---|---|
| County | Mecklenburg |
| City | Charlotte |
| Zip Code | 28216 |
| Area | Mecklenburg |
| Community Name | Lakeview Village |
| School District | Hopewell |
| Elementary School | Hornets Nest |
| High School | Hopewell |
| State | NC |
|---|---|
| County | Mecklenburg |
| City | Charlotte |
| Zip Code | 28216 |
| Area | Mecklenburg |
| Community Name | Lakeview Village |
| School District | Hopewell |
| Elementary School | Hornets Nest |
| High School | Hopewell |